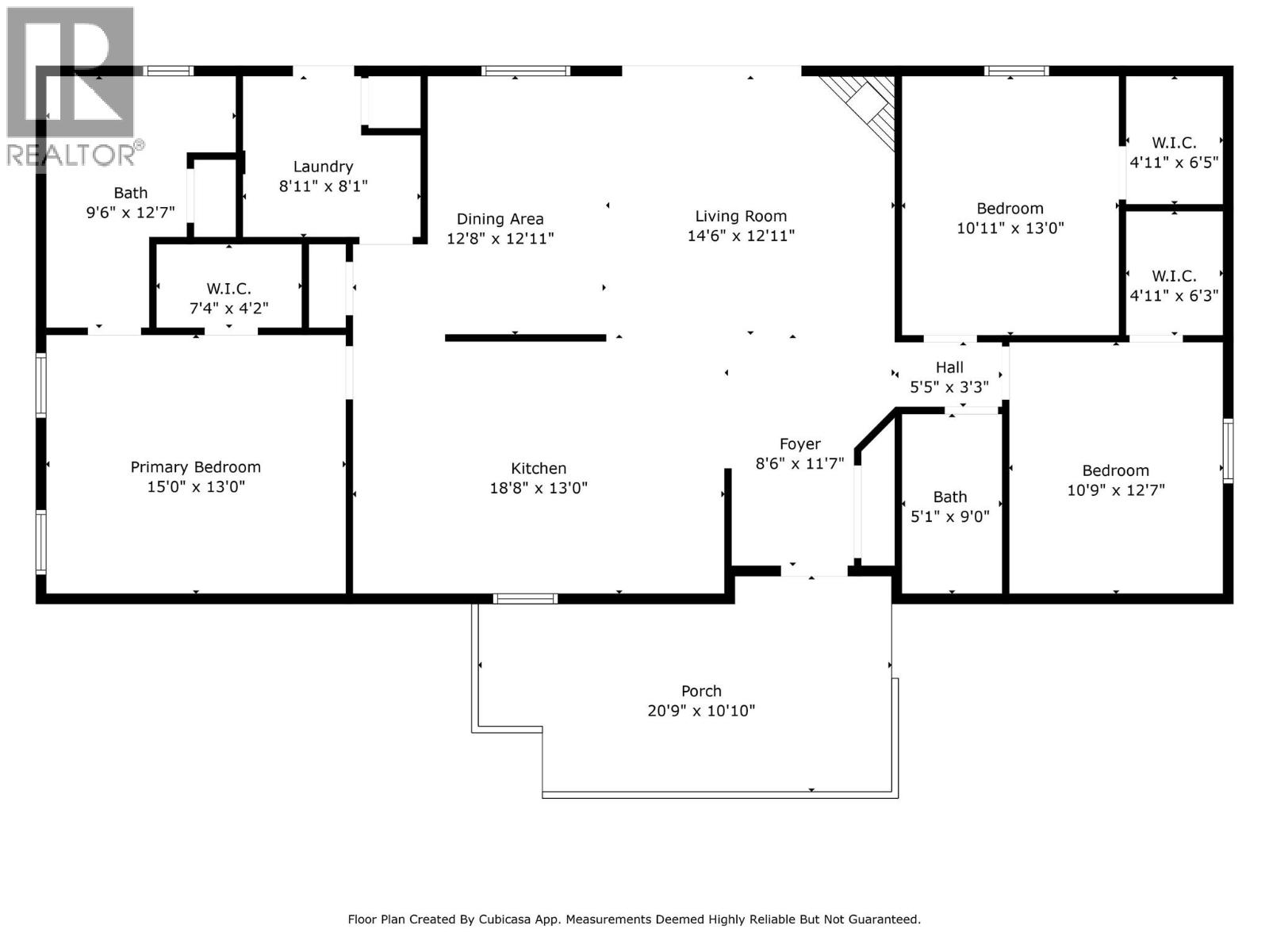
Welcome to Almond Gardens Mobile Home Park! This massive 1,680 sq ft home offers 3 bedrooms and 2 bathrooms, thoughtfully designed with comfort and accessibility in mind. Enjoy a spacious open-concept living area with a cozy gas fireplace, and walk-in closets in every bedroom for all your storage needs. The main bathroom features a convenient walk-in shower, while the master ensuite includes a luxurious walk-in jetted tub. A wheelchair ramp ensures easy access for seniors or anyone seeking added mobility. Step outside to a large covered deck, perfect for year-round enjoyment, along with a carport, paved driveway, and outdoor storage shed. The beautifully landscaped yard is filled with lush plants and shrubs, creating a serene and peaceful retreat. This home combines space, accessibility, and comfort in a quiet, welcoming community—don’t miss this opportunity! (id:4069)
Address
5455 Almond Gardens Road Unit# E4
List Price
$399,900
Property Type
Single Family
Type of Dwelling
Single Family
Transaction Type
Sale
Area
British Columbia
Sub-Area
Grand Forks
Bedrooms
3
Bathrooms
2
Floor Area
1,680 Sq. Ft.
Year Built
2007
Maint. Fee
$550.00
MLS® Number
10361145
Listing Brokerage
Royal LePage Little Oak Realty
Basement Area
Crawl space
Postal Code
V0H1H4
Site Influences
View
Features
Private setting, Wheelchair access, Jacuzzi bath-tub




































